Forsyth County Zoning Report December 2025

Howdy, I'm Luke Crawford from Forsyth County, near Downtown Cumming.

I specialize in helping landowners discover the best potential uses for their properties, determining the highest and best use, and creating effective marketing strategies to maximize their land's value. To ensure my clients get the best results, I closely monitor land sales and zoning activities in Forsyth County. I also publish monthly reports on these topics. If you're a landowner in Forsyth County and want to learn more about the highest and best use for your property, feel free to reach out!

Thanks, Luke Crawford

Submitted Zoning Applications


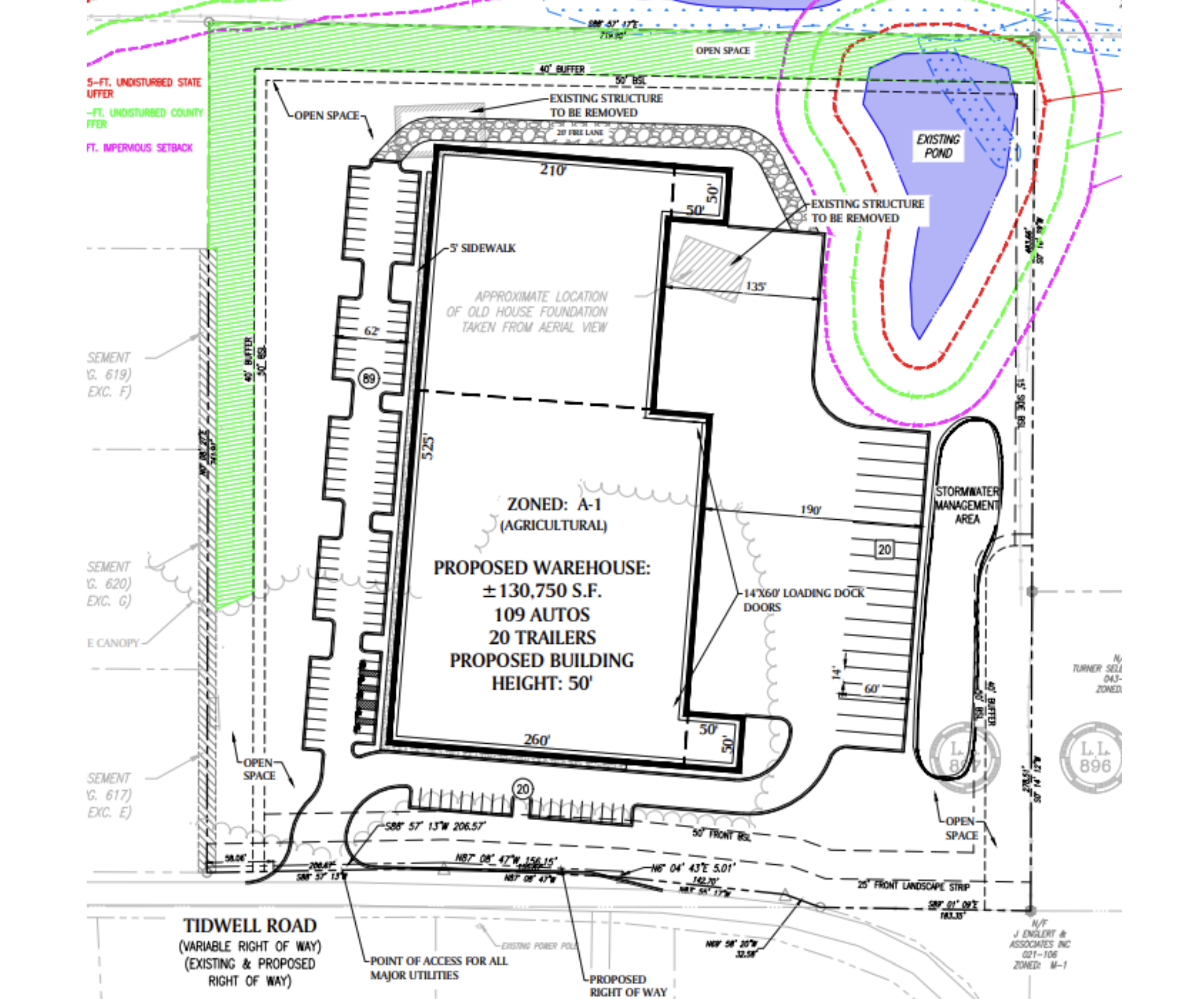
Plan Number: ZA4270

Application Date: 12/5/2025

Address: Tidwell Road

Parcel Number: 021 054

Acres: 12.318

Applicant: John Atkins Young, Jr

Zoning Attorney:  J. Ethan Underwood - Underwood Scoggins LLC

Current and Proposed Zoning:  Rezone from A1 to M1

Suspected Use: Warehouse  

Completed Rezonings


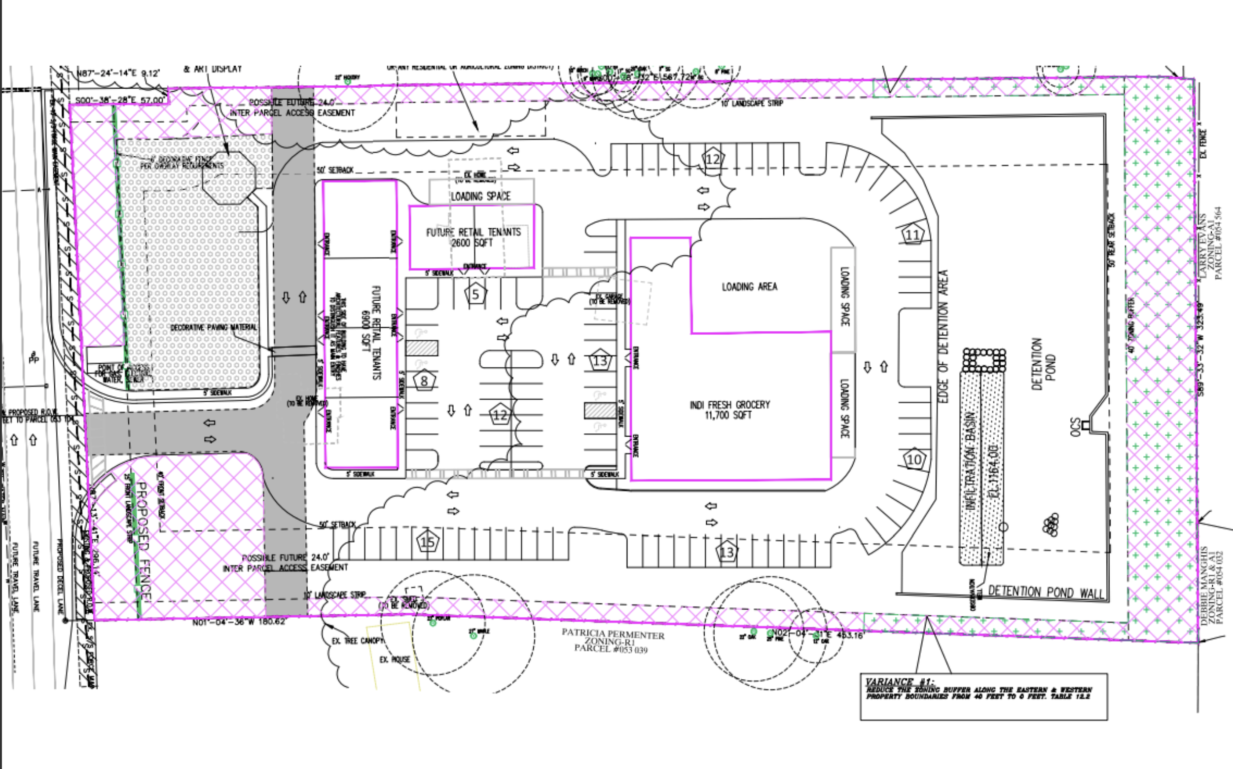
Plan Number: ZA4234

Application Date: 9/5/2025

Address: 3168 & 3173 Canton Hwy

Parcel Number: 053 038

Acres: 4.56

Applicant: SVS Traders LLC

Zoning Attorney:  Sean Courtney - Lipscomb Johnson LLP

Current and Proposed Zoning:  Rezone from R1 to CBD

Suspected Use: IndiFresh Grocery store and Retail space 

Previous
Previous

Overlook Apartments Break Ground at Cumming City Center

Next
Next

Attractive on Paper, Unaffordable in Reality: Forsyth County’s Housing Challenge